A quest for better building

New Zealand faces a large-scale housing crisis. Soaring house prices, a low supply of houses and a lack of high-density urban housing is forcing many New Zealanders out of urban capitals and to rent at exorbitant rates.

With the average market rent for Hamilton East at $340/w, many New Zealanders are struggling to realise their dreams of home ownership. A record low of 63% of New Zealanders own their own home, the lowest in over 60 years. The first of the KiwiBuild homes in the Waikato have opened the ballots for prospective buyers, hearkening back to the first of the state housing build wave and Frankton Model Village years before.

The sale of state houses under the National government of the 2000s has only helped grow the problem, and with no new houses being built, many New Zealanders are struggling to realise their dreams of home ownership. The most recent solution posed for this problem is KiwiBuild, the largest housing venture in almost 80 years.

kiwibuild-header.jpg

By Oskar Howell

Enter Kiwibuild

Unlike previous government housing ventures, does not exist as state housing, instead aiming to expand home ownership by driving up supply in the market and opening the market to first home buyers.

Housing and Urban Development Minister Phil Twyford says the country is in good hands with the KiwiBuild scheme.

“KiwiBuild is the biggest Government backed building programme since the 1940s. Like the first Labour Government, our Government isn’t afraid to intervene in a broken market and build more houses.

“Our Government’s bold plan to build our way out of the housing crisis is giving certainty to Housing NZ which it needs to work with its partners in new ways to achieve innovation and cost reductions, and to support them to scale up to meet our targets.”

Under the Kiwibuild scheme, 100,000 new houses will be developed in the next 10 years. Half of these will be in Auckland, and all state houses will cost under $600,000.

With this comes the aim to force a change in the housing market. With 50,000 new houses set for construction in Auckland, Twyford says he aims to force inflation in the market down, making houses more affordable to first time buyers.

The ambitious scheme is supported by infrastructure and development, including a new training scheme for building apprenticeships that will add a further 4000 workers to the build force.

Kiwibuild-Infographic

Twyford acknowledges the growth the industry is set to face, and like with the Frankton Model Village, is making sure Kiwibuild incorporates concepts like pre-determined floor designs and prefabricated materials to speed up the build time.

“They [Housing New Zealand] also have Council-approved standardised designs for homes with up to six bedrooms, which remove the need to redesign and request both resource and building consent for every project.

“Together with standardised construction methods, they can save up to nine months of pre-construction planning, consenting and building time.”

Like the Frankton Model Village in Hamilton, the current model for KiwiBuild also incorporates the manufacturing of materials off site, which are shipped to the building site for construction.

“Housing NZ is increasingly using off-site manufacturing technologies in its new build programme. The use of manufactured solutions started in 2016 with the establishment of an Off-site Manufacturing Solution Supplier Panel.

“For the government, the use of prefabrications in the housing industry has a long and fruitful history, and allows for new technology and design to improve the livelihoods of New Zealanders nationwide.

However Kiwibuild is not without its shortcomings. As a housing venture, it has come under harsh criticism for not allowing lower income families an entry into the property market, only facilitating middle income families.

Twyford says that it’s important to recognise that this was never what KiwiBuild was meant to do.

“KiwiBuild homes are not state homes. KiwiBuild homes are sold to first home buyers.”

For many, Kiwibuild represents a chance to break into a privileged and exclusive housing market and a place on the housing ladder.

Frankton-the-model-village-new.jpg

By Arielle Christiansen

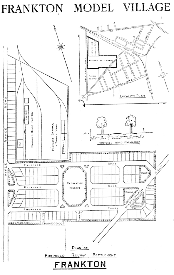
On the surface, Frankton looks like any other suburb. Old streets woven with new townhouses and the odd corner shop. However, Frankton has a deep history embedded in the community spirit and social progress of New Zealand.

Working on the railways was a laborious task. The hours were long, and the work was tough. Railways demanded round-the-clock maintenance, requiring large amounts of workers to live close to the lines to keep the system running smoothly.

In 1919, General Manager of the New Zealand Railways R.W McVilly penned a letter to then acting prime minister of New Zealand, Sir James Allen. He drew attention to the ‘very serious difficulty’ that the railwaymen were facing trying to secure housing for their families.

Frankton-Letter.jpg

McVilly stated that this could only be rectified if ‘the Government provided the Railway Department with sufficient funds’ to keep building railway houses for the workers.

Frankton was a major rail hub in the country, with acres of unsettled land. Its proximity to the station allowed workers to be close to work, but far enough away from the smoke and noise to create a balance between work and life.

Enlarge

Frankton-Model-Village
Proposed Frankton Model Village plans published in the Waikato Times, 4 December 1920. Image: Papers Past.

The plan to create a model suburb moved quickly. Actioned by William Massey, minister of railways, the plan was proposed in 1919 and began motion within a year; lightspeed by today’s standards.

The radical scheme McVilly proposed, involved the setup of a sawmill and house factory in Frankton to make prefabricated railway cottages. They would be cheap to manufacture and quick to assemble.

George Troup, an architect was brought into the consultation and was appointed the officer in charge of the new Architectural Branch of the New Zealand Railways in Frankton. Troup had experience in town planning and used the garden city ideology as a foundation for the Frankton Village.

Troup’s adoption and strong adhesion to the concept meant that the Frankton Junction village was designed with the mental well being of workers and a strong community spirit in mind, rather than maximising space and accommodation.

Unlike the corporate privatisation of state housing that was occurring in Great Britain during the time, with their terraced housing developments.

The Frankton Model Village led to an unprecedented success in productivity and communal spirit. A tight-knit community was formed, and the settlement was socially self-sufficient. The uniformity of the houses represented one ideal and leveled the playing field for renters.

The design of the cottages was simple with little attention paid to unique design, the streamlined build process was intent on minimising building waste.

There were four house designs, appearing different from the outside but with identical floor plans. They were all designed in favour of smaller families, as single men were given accommodation in hostels.

The houses came as designed prefabrications. Resources were aggregated and cut to shape at the Frankton house factory beside the village, and at its peak, the factory was producing 30,000 feet of manufactured prefabrication a day.

tdm-header.jpg

By Oskar Howell & Arielle Christiansen

A modern take on a classic solution

As the housing crisis develops, many are looking into the past to find solutions.

TDM Homes, a building company with a contemporary take on prefabricated housing is one such company. Similar to the Frankton Model Village nearly a century earlier, TDM has an entire factory dedicated to the assembly of prefabricated houses. At 1600 square feet of floor space, the factory is large and houses a refined, speedy process of home-building not yet seen in New Zealand.

Assembled in the factory, the individual rooms of the house, called ‘modules,’ are then transferred by truck to the construction site. Operations manager Anthony Blackmoore says the pre-fabrication of the houses in the factory is reshaping the industry, but says that the process for the manufacture of the modules is confidential.

“We want to streamline it [the industry] and speed up the entire process.

“Any house can be modular, it’s just about how its designed.”

TDM operates on the triple-eight setup: eight weeks to manufacture the modules, eight hours to transport and build the house on-site, and then eight days to fully furnish.

The individual sections of the house, called modules, are assembled at the factory using a variety of powdered steel, treated timber and other heavy duty building materials.

The modules are then transported by truck to the work site, and are assembled rapidly by the construction crew by conveniently bolting together.

The house is then fully furnished over the next eight days.

Blackmoore says that despite the simplistic build prices, consumers aren’t limited to basic designs.

“Creating individual modular housing units gives us the flexibility to customise for the client.”

The short build process means less health and safety risks, less time waiting for the individual components, and less time spent in the weather.

Managing Director of TDM Trent Montgomery says that by working to a tight schedule, the company can avoid the setbacks of traditional construction and predict where problems can arise.

“We aren’t looking to be able to build twice as fast – we’re just looking at different processes and a different approach so that the overall time of the build is considerably less.

Montgomery says this is reflected in the end price for consumers.

“We’re able to reduce the time it takes to produce these homes, allowing consumers to save quite a bit of money.

“People can save money in the site works themselves, like in excavation and site preparation.”

Enlarge

44164474_254267022100713_1544714219553816576_n
Trent Montgomery (left) and Anthony Blackmoore (right) think that constant innovation is the key to success. Image: Supplied

TDM’s unique shakeup of the housing industry has caught the eye of Housing Minister Phil Twyford, something Montgomery expects will help the business expand.

“We’re working on our pitch to the government on Kiwibuild. HNZ have always been looking at offsite manufacturing.”

“The modular system would be relatively new to them, and we can see some huge benefits for HNZ particularly in the multi-level construction.”

Montgomery says that when all is said and done, TDM are just builders out to change the industry.

“We’re not rocket scientists. We’re here to simply what we believe is a fairly basic principle, and just make it easier.”